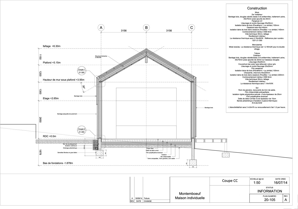
Cross-section showing foundations (ground floor build up) October 14, 2014 by lespetitesgarennes Leave a comment ← Previous Image